Ai un proiect? Contacteaza-ne si iti facem preturi speciale. Tel/Whatsapp 0726.211.111

Zambelli Jgheab rectangular, D150mm, lungime 3ml, CUPRU

Zambelli
-243 Lei
1.626,02 Lei 1.383,17 Lei
La comanda

Durata de livrare: 4 saptamani

Limita stoc
Adauga in cos
Cod Produs: 114240-3000 Ai nevoie de ajutor? +40726.211.111
Adauga la Favorite Cere informatii
  • Descriere
  • Caracteristici
  • Video (1)
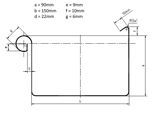
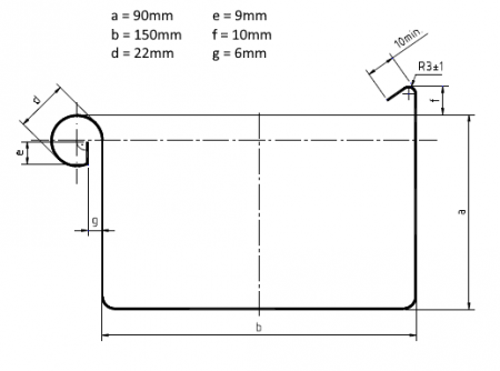
Jgheab de scurgere rectangular (dreptunghiular) din cupru
Producator Zambelli (Germania).

Detalii tehnice
Lungime:
3 metri
Diametru baza: 150mm
Inaltime: 90mm
Latime desfasurata: 400mm
Grosime: 0.55mm
Vezi mai mult Informatii conformitate produs

Culoare: Cupru

Compara produse

Trebuie sa mai adaugi cel putin un produs pentru a compara produse.

A fost adaugat la favorite!

A fost sters din favorite!